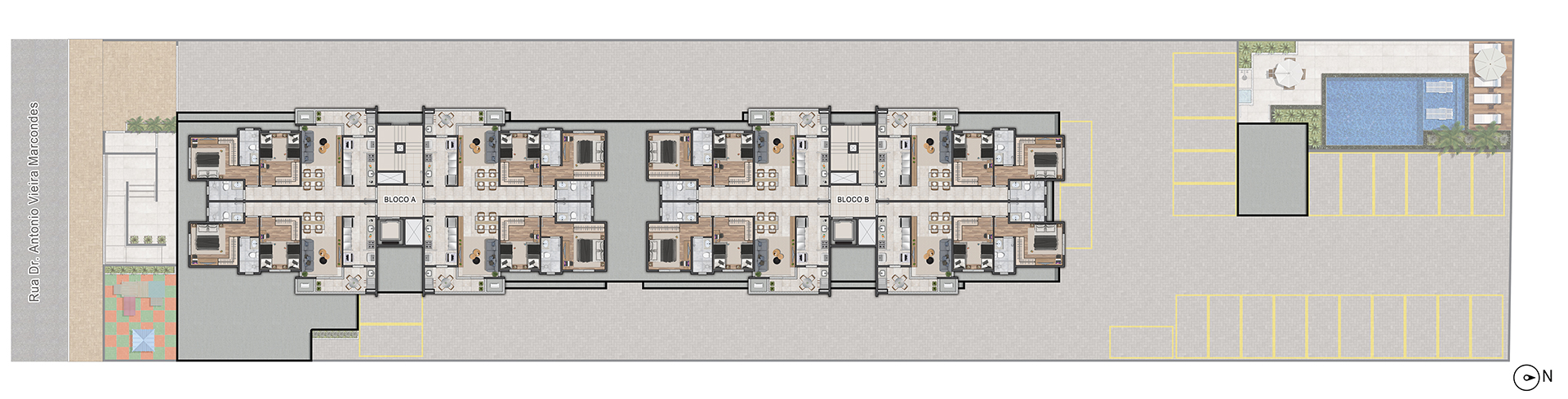
Duas Torres com
7 Andares Cada
 
4 Apartamentos
por Andar
 
Área de Lazer Completa
com Playground e Piscina
 
Academia
 
Portaria Virtual Inclusa
 
Salão de Festas
 
Apoio de Placas FotoVoltaicas para Área Comum
 
Infraestrutura de Sistema de Energia Elétrica para Veículos Elétricos*
 
Área Comum
Entregue Mobiliada